























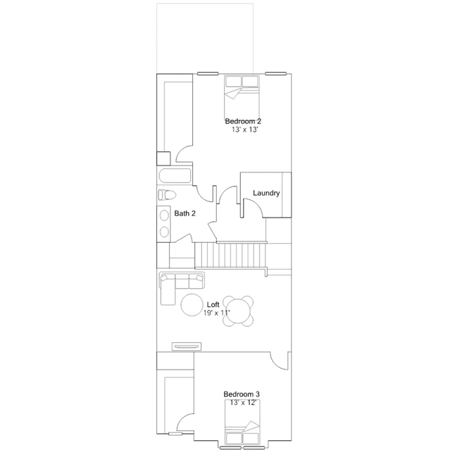
This new two-story home showcases a first-level owners suite, which comes complete with a full-sized bathroom and a large walk-in closet. It provides homeowners easy access to the open-plan layout located among the family room, breakfast area and a well-equipped kitchen. Upstairs, a central loft provides additional entertainment space and divides the two secondary bedrooms, one of which connects directly to a shared bathroom.