



































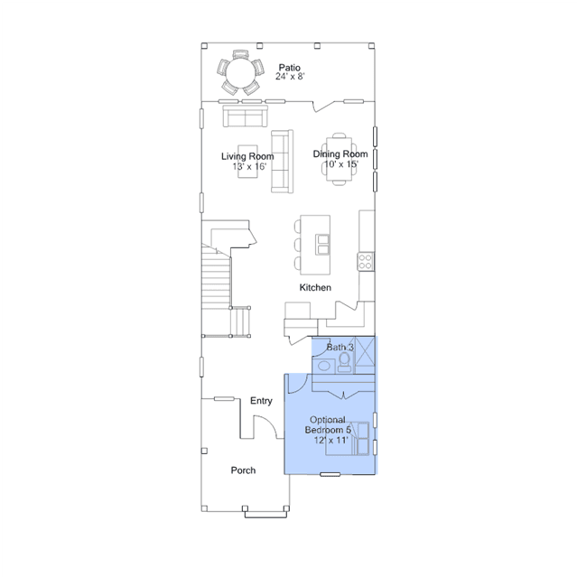
This spacious two-story home features a sun-drenched study, followed by an open main living space that extends to the patio for outdoor living. Upstairs is a versatile loft surrounded by two secondary bedrooms and the private owners suite, which includes an adjoining bathroom and walk-in closet. Completing the home is a detached two-car garage facing the street.
Stay informed with Livabl updates on new community details and available inventory.