




















































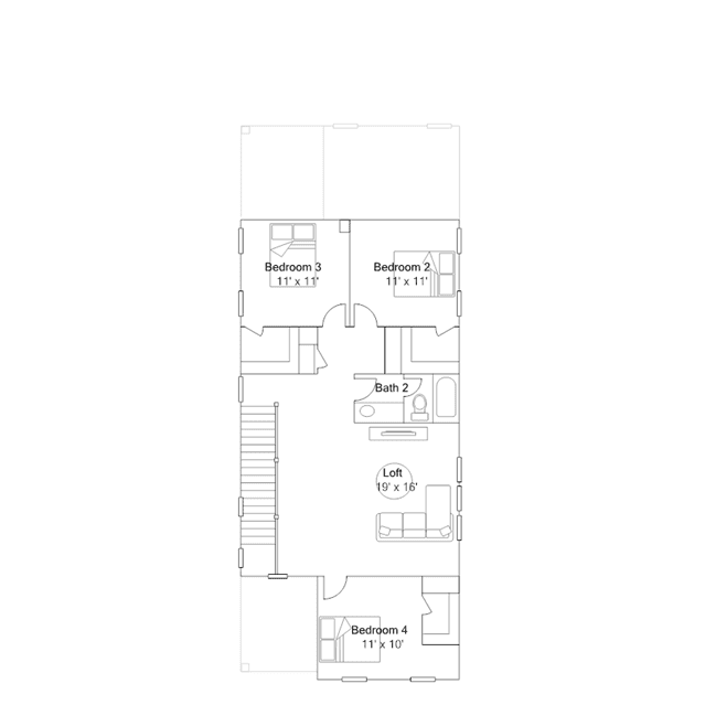
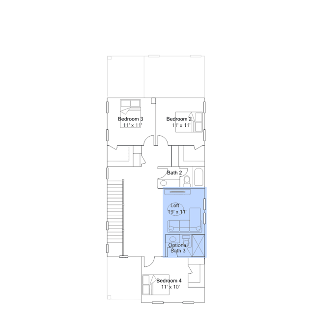
This two-story home features a spacious front porch ideal for outdoor living or entertaining intimate parties. There is a contemporary open space layout in the kitchen, family room and dining room with access to the patio, along with the owners suite on the main floor. Upstairs is a loft surrounded by three extra bedrooms. A two-car detached garage completes the home.
Stay informed with Livabl updates on new community details and available inventory.