





































































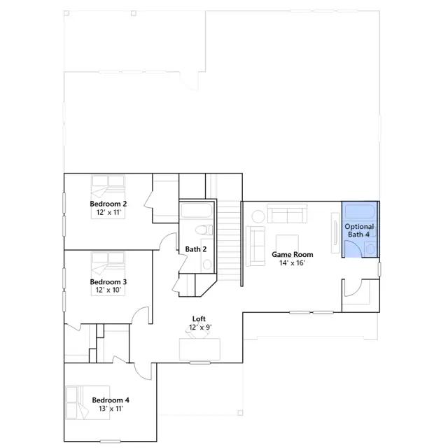
The largest design in this collection, this two-story home showcases a total of five bedrooms and is perfect for large or growing families. Upon entry is an open concept layout in the kitchen, dining room and a Great Room with an included fireplace, ideal for hosting and relaxing. Nearby is a rear covered patio for outdoor activities. Also on the first floor is the serene owners suite with a full-sized bathroom and walk-in closet. A loft and second-floor game room offers endless opportunities for entertainment.
Stay informed with Livabl updates on new community details and available inventory.