






















Get additional information including price lists and floor plans.

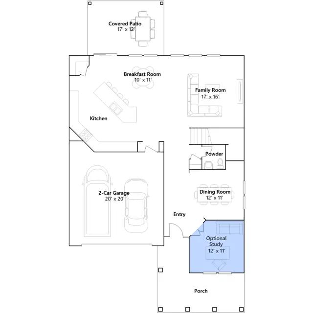
Designed for gracious living, this new single-family home spans two levels. Upon entry are a formal living room and dining room, accompanied by a chef-ready kitchen, casual breakfast room and a sun-drenched family room at the rear. A desirable covered patio offers outdoor moments. Upstairs, two of the four bedrooms include an adjoining bathroom, one of which is the lavish owners suite. A sprawling bonus room lends additional entertainment space.
Stay informed with Livabl updates on new community details and available inventory.