








































































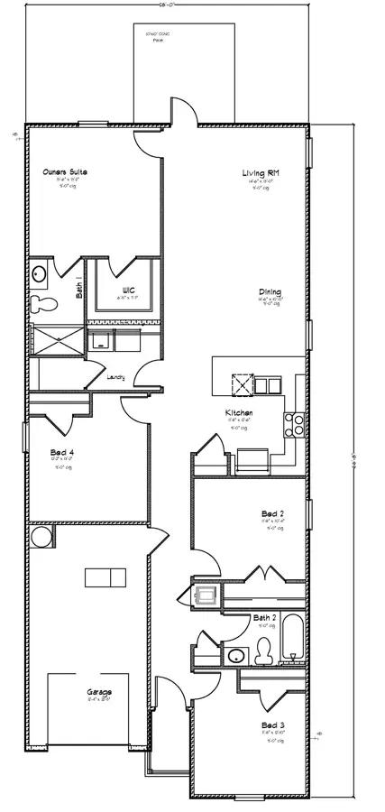
Welcome to the charming Camilla floor plan in Dogwood Estates of Summerdale, Alabama. This cozy cottage-style home features 4 bedrooms and 2 bathrooms, all on one level, with 1,504 square feet of living space. Stylish and comfortable, this home is designed to suit your needs. Additionally, it includes a brand-new one-car garage. This home features a fantastic open-concept main area, seamlessly connecting the kitchen, dining, and living rooms to the outdoor space. Enjoy cooking in the kitchen, which overlooks the dining area and the great room. The split bedroom plan ensures just the right amount of privacy. The primary bedroom serves as a retreat, featuring an ensuite bath and a spacious open closet. The second and third bedrooms are located away from the primary bedroom and are separated by a second full bathroom with a linen closet. The fourth bedroom is conv...
Stay informed with Livabl updates on new community details and available inventory.