



Get additional information including price lists and floor plans.


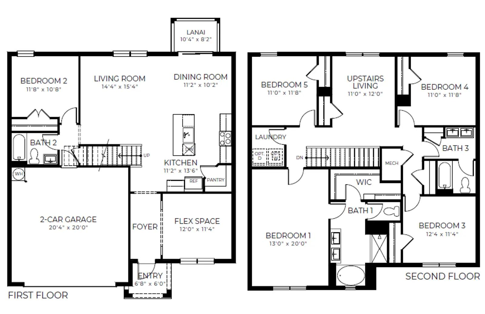
Find all the space you need in the Hayden floor plan in our Sandpiper Square community, in Stuart, Florida. The Hayden is a two-story, single-family home with 2,645 square feet of space. It features 5 bedrooms and 3 bathrooms, along with a 2-car garage. On the first floor, you'll find a flexible space that can be used as an office or additional living area, as well as a bedroom with an adjacent full bathroom, making it ideal for guests. The main living area includes a large living room, dining room and a well-equipped kitchen, which flow seamlessly for ease of entertaining. Upstairs, there is an additional living room that provides extra space for relaxation or activities, along with the remaining four bedrooms, including the primary bedroom with its own en-suite bathroom.
Stay informed with Livabl updates on new community details and available inventory.