



























































Get additional information including price lists and floor plans.
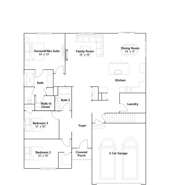
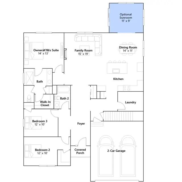
Set among a single-level design, this home features a spacious foyer that leads directly into the family room, dining room and kitchen at the back of the residence. Three bedrooms offer plenty of space for small and growing families. The generous owners suite is host to a walk-in closet and an en-suite bathroom.
Stay informed with Livabl updates on new community details and available inventory.