New Homes for Sale
Articles
Professionals
Log in
Sign up
Photos 29
Videos 0
Map
Interactive floor plan 0
Virtual 0
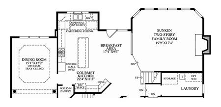
Elkton Plan
By
Toll Brothers
   |  Â
Old Mystic Estates at Stonington
Community
Available homes
Get updates
Save
Request info
Request info
Community
Available homes
Request info
Get updates
Save
Request info
Old Mystic Estates at Stoningt...
Get updates
Request info
Sold
Sold
4
2
1
From 3,440
Elkton Plan details
Address:
Â
Stonington, CT 06378
Plan type:
Â
Detached Two+ Story
Beds:
Â
4
Full baths:
Â
2
Half baths:
Â
1
SqFt:
Â
From 3,440
Ownership:
Â
Fee simple
Interior size:
Â
From 3,440 SqFt
Lot pricing included:
Â
Yes
Elkton Plan is now sold.