










































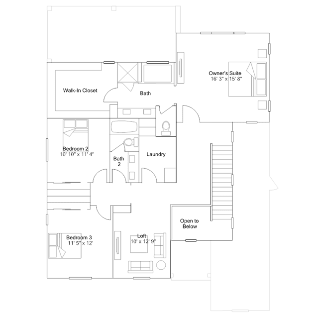
The Great Room, kitchen and dining room are situated among a convenient and contemporary open floorplan, featuring access to the covered patio through sliding glass doors. Also on the first floor is a versatile secondary bedroom, great for overnight guests or a home office. A versatile loft and three more bedrooms occupy the second floor, including a luxe owners suite with a restful bedroom, en-suite bathroom and walk-in closet.