hero-image-0
hero-image-1
hero-image-2
hero-image-3
hero-image-4

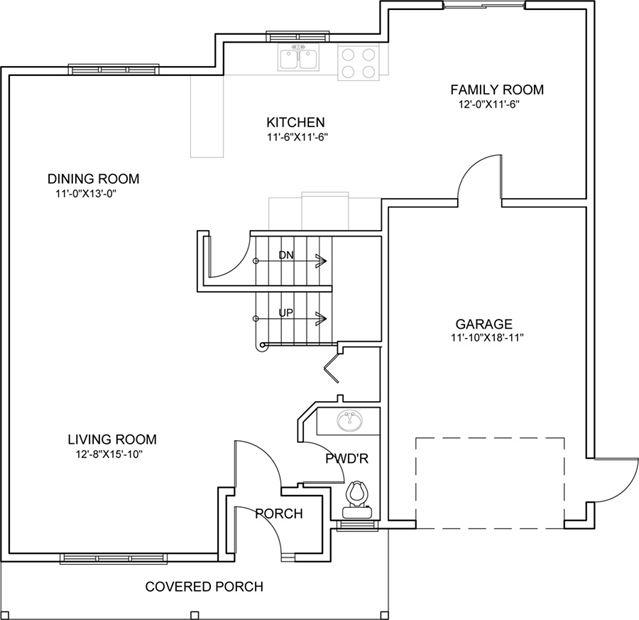
The Patterson Plan

By

Donovan Homes

   |   

Bristolwood

Bristolwood
For sale
For sale
Last listed from $434,900
2
3
2
1
From 1,550
The Patterson Plan details

Contact sales center

Get additional information including price lists and floor plans.

Interested? Receive updates

Stay informed with Livabl updates on new community details and available inventory.