hero-image-0

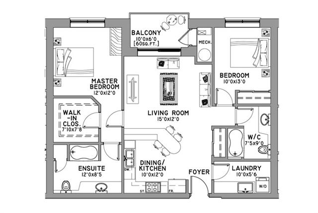
The Vine (B3) Plan

Walkers Creek Condos
Sold
Sold
2
2
From 1,140
unit-banner-imageunit-banner-imageunit-banner-image
The Vine (B3) Plan details
The Vine (B3) Plan is now sold.
Check out available nearby plans below.