New Homes for Sale
Articles
Professionals
Log in
Sign up
Photos 1
Videos 0
Map
Interactive floor plan 0
Virtual 0
Unit 8
By
Rinaldi Homes
|
Mill Creek at Shorthills
Community
Get updates
Save
Request info
Request info
Community
Request info
Get updates
Save
Request info
Mill Creek at Shorthills
Get updates
Request info
Sold
Sold
2
2
1
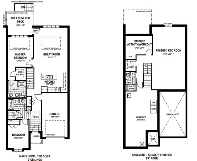
1,328
Unit 8 details
Address:
St. Catharines, ON L2S
Plan type:
Bungalow
Beds:
2
Full baths:
2
Half baths:
1
SqFt:
1,328
Ownership:
Condominium
Interior size:
1,328 SqFt
Lot pricing included:
Yes
Unit 8 is now sold.
Check out available nearby townhomes below.
Similar 2 bedroom townhomes nearby
view all
20
Glenridge Heights
$489,990
Marsdale, St. Catharines
3
Glenridge Heights
$489,990
Marsdale, St. Catharines
9
Glenridge Heights
$469,990
Marsdale, St. Catharines
13
Glenridge Heights
$499,990
Marsdale, St. Catharines
120
Lot 16
$584,990
Oakdale, St. Catharines