hero-image-0
Mill Creek at Shorthills
Sold
Sold
2
2
1
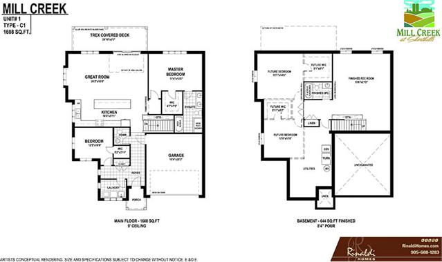
From 1,608
unit-banner-imageunit-banner-imageunit-banner-image
C1 Plan details
C1 Plan is now sold.
Check out available communities below.