







































Images coming soon
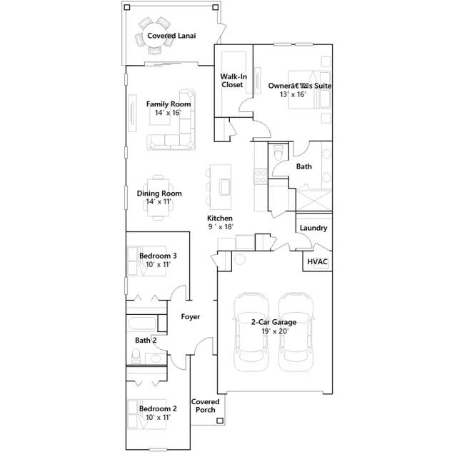
This single-story home features an open layout in the kitchen, dining room and family room, which extends to the covered lanai for outdoor living. In addition to the owners suite with a spa-like bathroom, there are two peaceful bedrooms for family members or overnight guests. Completing the home is a convenient two-car garage for versatile storage space.
Stay informed with Livabl updates on new community details and available inventory.