



















































Images coming soon
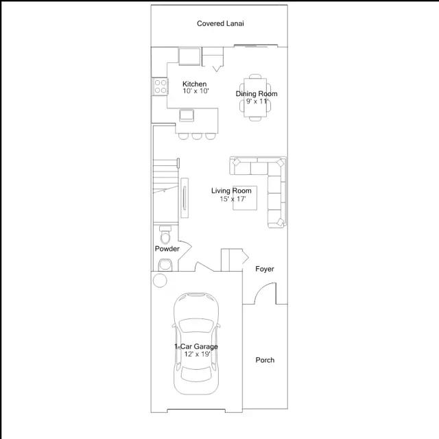
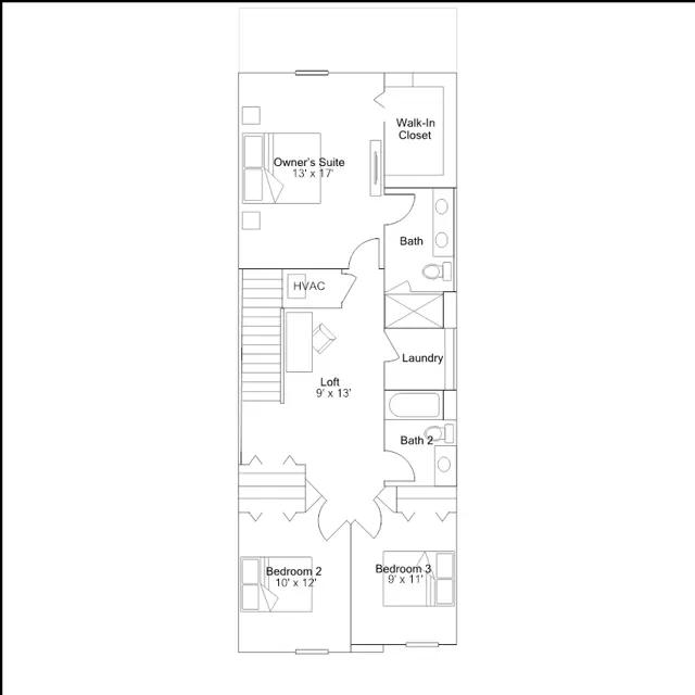
The first level of this two-story townhome features an open-concept design, allowing seamless transition between the gathering room, kitchen and nook. A covered lanai offers convenient indoor-outdoor dining and entertaining, while three bedrooms and a loft occupy the second floor.
Stay informed with Livabl updates on new community details and available inventory.