hero-image-0

75 GRANITE AVE

Enclave at Treaty Oaks
Sold
Sold
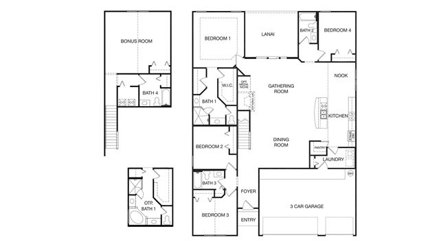
5
4
2,892
75 GRANITE AVE details
75 GRANITE AVE is now sold.
Check out available communities below.