



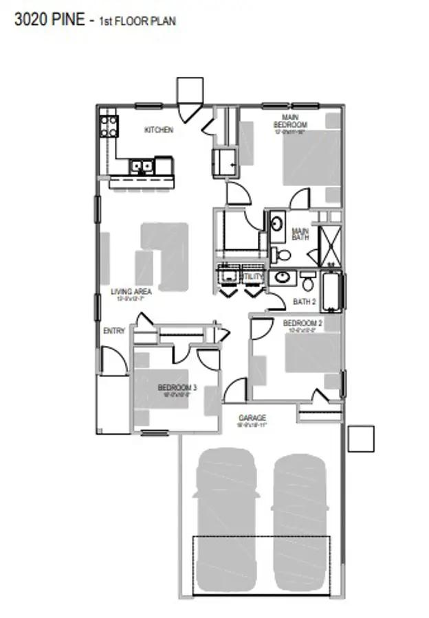
The Pine offers a perfect blend of comfort and versatility, designed to meet the needs of modern living. This thoughtfully crafted home boasts an open-concept living area that seamlessly connects the kitchen, dining, and family room—ideal for both entertaining and everyday life. With plenty of natural light, ample storage, and contemporary finishes throughout, the Pine is where comfort meets style. Source: Trophy Signature Homes
Stay informed with Livabl updates on new community details and available inventory.