hero-image-0

78 50 McLaughlin Drive

McLaughlin
Sold
Sold
2
2
1
834
78 50 McLaughlin Drive details
78 50 McLaughlin Drive is now sold.
Check out available communities below.

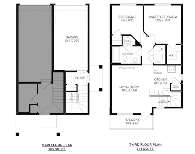
Floor plan

2021_06_09_12_21_21_westleyblackline.png
Sold

Westley

McLaughlin

Quartz countertops throughout Premium vinyl plank flooring Subway tile backsplash Single attached garage