hero-image-0
McLaughlin
Sold
Sold
2
2
1
From 1,197
unit-banner-imageunit-banner-imageunit-banner-image
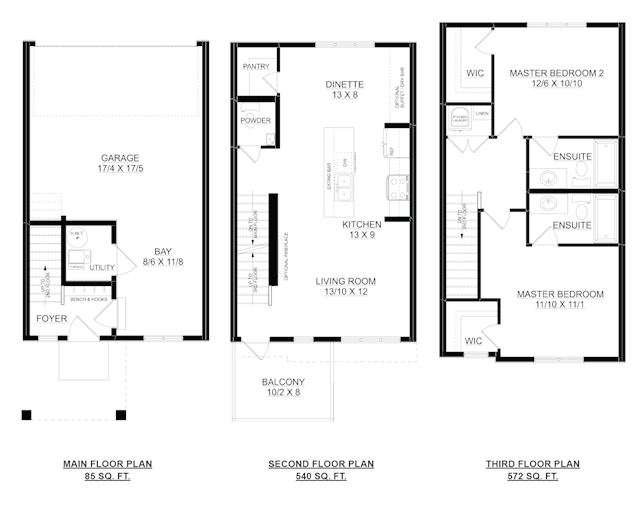
Fremont Plan details
Fremont Plan is now sold.
Check out available communities below.