hero-image-0
hero-image-1

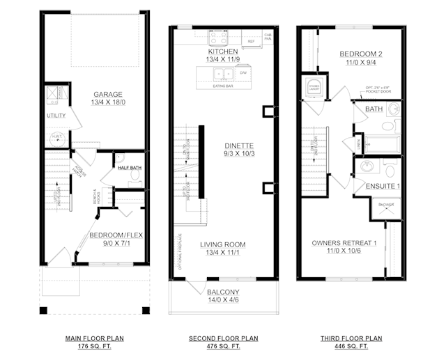
1243 McLEOD AVE.

Easton
Sold
Sold
3
2
1
1,098
1243 McLEOD AVE. details
1243 McLEOD AVE. is now sold.
Check out available nearby townhomes below.

Interested? Receive updates

Stay informed with Livabl updates on new community details and available inventory.