hero-image-0

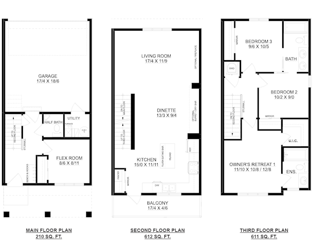
Madelyn II Plan

Easton
Sold
Sold
3
2
1
1
From 1,433
unit-banner-imageunit-banner-imageunit-banner-image
Madelyn II Plan details
Madelyn II Plan is now sold.

Interested? Receive updates

Stay informed with Livabl updates on new community details and available inventory.