hero-image-0
hero-image-1
hero-image-2
hero-image-3

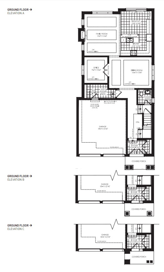
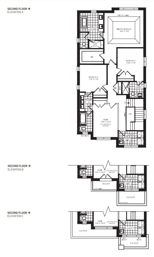
Willow - Elev. A Plan

By

Geranium

   |   

Midhurst Valley

Midhurst Valley
For sale
For sale
Pricing coming soon
2
3 - 5
3 - 4
1
1
From 2,669
unit-banner-imageunit-banner-imageunit-banner-image
Willow - Elev. A Plan details

Contact sales center

Get additional information including price lists and floor plans.

Interested? Receive updates

Stay informed with Livabl updates on new community details and available inventory.