hero-image-0
hero-image-1
hero-image-2
hero-image-3

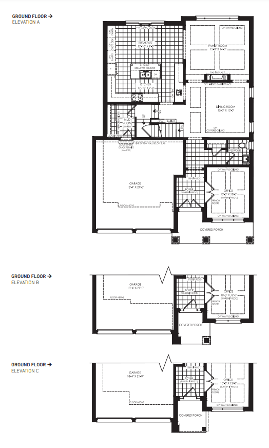
Simcoe - Elev. A Plan

By

Geranium

   |   

Midhurst Valley

Midhurst Valley
For sale
For sale
Pricing coming soon
2
4 - 5
3 - 4
1
1
From 2,905
unit-banner-imageunit-banner-imageunit-banner-image
Simcoe - Elev. A Plan details

Contact sales center

Get additional information including price lists and floor plans.

Available homes

Interested? Receive updates

Stay informed with Livabl updates on new community details and available inventory.