





























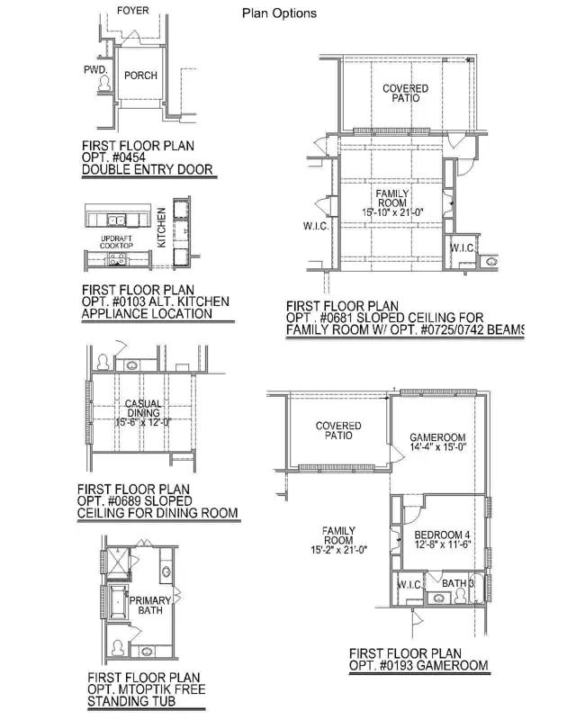
This attractive one-story plan has 4 bedrooms, 3.5 baths with a 2.5 car garage. This plan includes a casual dining room, family room, study and a covered patio. Options: alternate kitchen appliances, double entry door, sloped ceiling at family room, beams at family room, sloped ceiling at dining area, electric fireplace, gameroom, glass sliders at family room, extended covered patio, free standing tub,5 ft. garage extension, 1-car garage extension.
Stay informed with Livabl updates on new community details and available inventory.