
























Get additional information including price lists and floor plans.

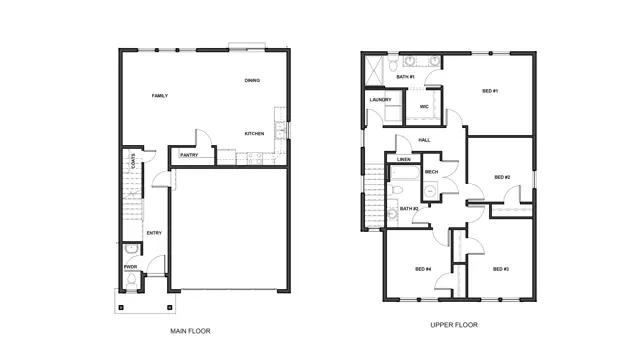
Presenting the Sherwood home design at Aspen Park. This delightful 2-story layout showcases various exterior elevations, each boasting a charming covered front porch and appealing features. As you step inside, you'll discover a well-placed powder room conveniently located just before the staircase. Proceed down the hallway, past the under-stair storage, to the spacious, wide-open concept living area that encompasses the family and dining rooms, along with a kitchen that boasts a generous pantry. These areas are ideal for entertaining, thanks to their seamless flow. The L-shaped kitchen offers plenty of countertop space for whipping up your favorite dishes and features beautiful, crisp cabinetry for ample storage. The dining area provides direct access to the outdoor patio through sliding glass doors, and also connects to a bright living room, flooded with n...
Stay informed with Livabl updates on new community details and available inventory.