

































































Get additional information including price lists and floor plans.
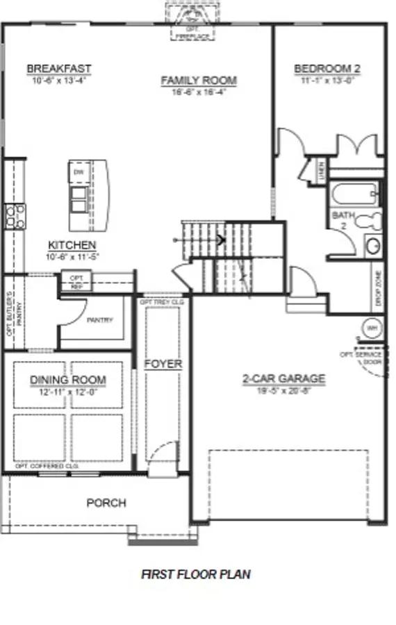
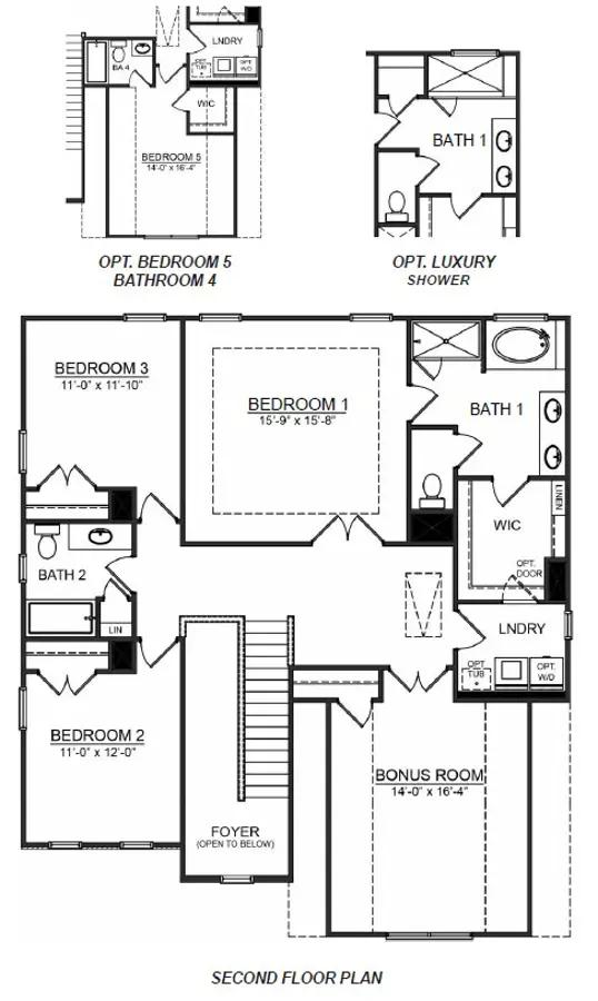
This charming single-story home features three bedrooms, two full bathrooms, and a two-car garage, providing comfortable and accessible living space. Upon entering, youll be welcomed by an inviting foyer that leads into the open-concept living area. The dining room seamlessly connects to the family room and kitchen, creating an airy and spacious atmosphere. The chefs kitchen is well-equipped with modern appliances, a pantry closet, and a breakfast barperfect for cooking and casual dining. The primary suite serves as a peaceful retreat, featuring an en-suite bathroom with dual vanities and a walk-in closet. The additional bedrooms provide comfort and privacy and have access to a secondary bathroom. Outback, the covered porch is ideal for outdoor entertaining or enjoying the beautiful weather. With its thoughtful design and convenient single-level layout, this ...
Stay informed with Livabl updates on new community details and available inventory.