


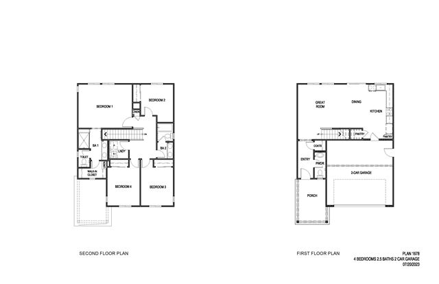
The Zephyr floorplan is a two-story new home option in our Sparks community, The Willows. Make yourself at home in the 4 bedroom, 2.5 bathroom layout. All 1,678 sq. ft. are packed with modern comfort and functionality. The first floor features a beautiful open-concept design. Whether youre spending time in the great room or the large kitchen, youll never be far from the action. The kitchen also opens to the 2-car garage. Heading up the stairs, youll find the perfect place to rest or create bonus spaces within the four carpeted bedrooms. The laundry room is also placed in the upstairs hall so that laundry day will be a breeze with this practical placement. The secondary bathroom is placed between the three secondary bedrooms. The primary bedroom has an attached bathroom with a double vanity, walk-in closet, and separate toilet, making getting ready for your day ...