


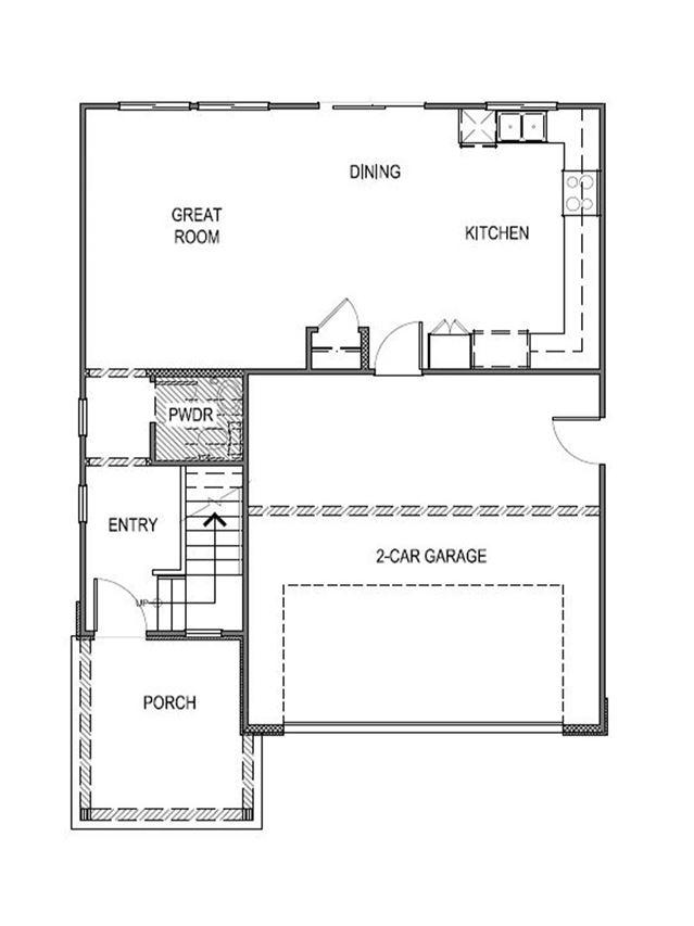
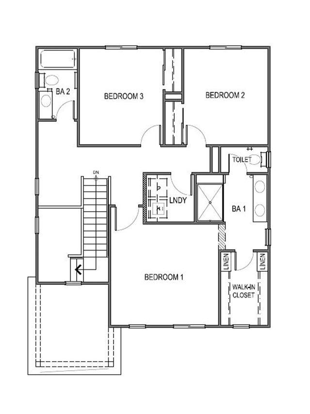
Keystone is a unique two-story floorplan in The Willows, a new home community in Sparks. This 3-bedroom, 2.5-bath plan uses all 1,547 sq. ft. to make your day-to-day comfortable and homey. The first floor is dedicated to the open-concept living space, with the great room, dining area, and kitchen all blending seamlessly. Youll also have easy indoor access to the garage. Youll find all the space you need to prepare your meals and a beautifully designed kitchen to work in. This floorplan also features an attached 2-car garage. Upstairs, youll find all three bedrooms and the laundry room, so you wont need to worry about carrying your laundry up and down the stairs. Each bedroom is carpeted and cozy. The primary bedroom is a comfortable and spacious place to relax, with an attached bathroom. Theres plenty of room to get ready in the morning with a double vanity, se...