




































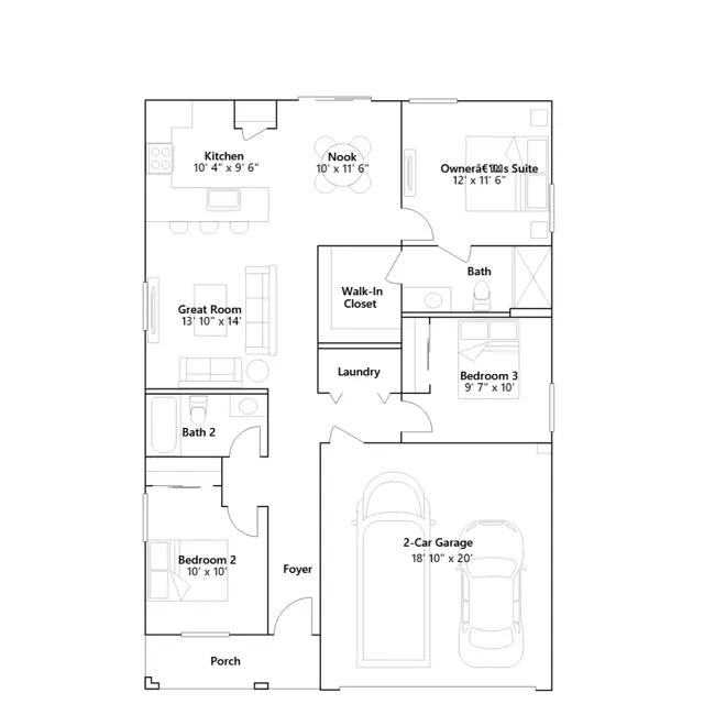
This single-level home boasts a modern and low-maintenance layout. Two convenient bedrooms are located off the foyer, leading to an inviting open-concept floorplan shared between the kitchen, living and dining areas. The lavish owners suite is tucked into a private rear corner, offering access to an en-suite bathroom and roomy walk-in closet.