


































































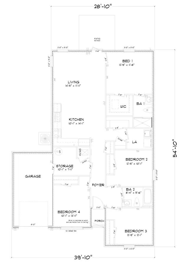
Explore the Sullivan, our brand-new floor plans that is now available in Revere at Independence, in Spanish Fort, Alabama. With six elevations to choose from in this community, you will love the curb appeal of this home. The Sullivan features 4-bedrooms, 2-bathrooms and 1,417 square feet of space. It also includes a 1-car garage. As you enter, the inviting foyer leads you past the bedrooms and into a spacious kitchen with an abundance of natural light. The kitchen is equipped with modern cabinets, stainless-steel Whirlpool appliances, granite countertops, a pantry for extra storage, and plenty of counter space for all your cooking needs. The open-concept layout seamlessly blends the kitchen, dining, and living areas together to maximize your daily activities or entertaining space. Adjacent to the living room, the spacious primary bedroom boasts a walk-in clo...
Stay informed with Livabl updates on new community details and available inventory.