


























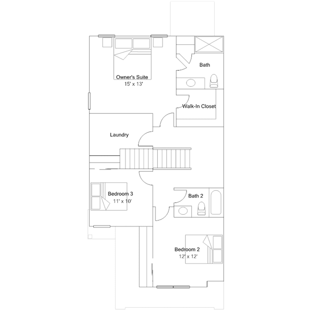
This new two-story townhome is designed for comfort and convenience. The first-floor Great Room flows effortlessly into the dining room and chef-caliber kitchen, while the patio is perfect for grilling steaks and veggie burgers. The upstairs owners suite has a luxe bathroom and a walk-in closet.