






























Get additional information including price lists and floor plans.
Images coming soon
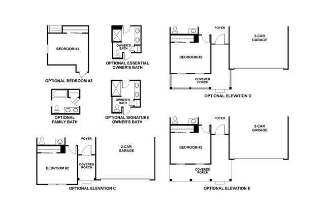
Welcome to the Maxfield at Becketts Landing! The Maxfield is one of our ranch floorplans at M/I Homes and great for those desiring easier accessibility. Be sure to take a closer look inside this single-level floorplan. This home features two bedrooms with an optional third bedroom, an open kitchen with a breakfast area, a large owners suite, and a two-car garage!
Stay informed with Livabl updates on new community details and available inventory.