New Homes for Sale
Articles
Professionals
Log in
Sign up
Photos 3
Videos 0
Map
Interactive floor plan 0
Virtual 0
7408 Better Way Loop SE
By
Toll Brothers
|
Kimball Creek - Single Family
Community
Get updates
Save
Request info
Request info
Community
Request info
Get updates
Save
Request info
Kimball Creek - Single Family
Get updates
Request info
Sold
Sold
3
2
1
1,664
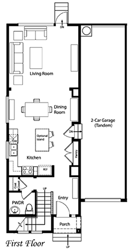
7408 Better Way Loop SE details
Address:
Snoqualmie, WA 98065
Plan type:
Detached Two+ Story
Beds:
3
Full baths:
2
Half baths:
1
SqFt:
1,664
Ownership:
Fee simple
Interior size:
1,664 SqFt
Lot pricing included:
Yes
7408 Better Way Loop SE is now sold.