













Images coming soon
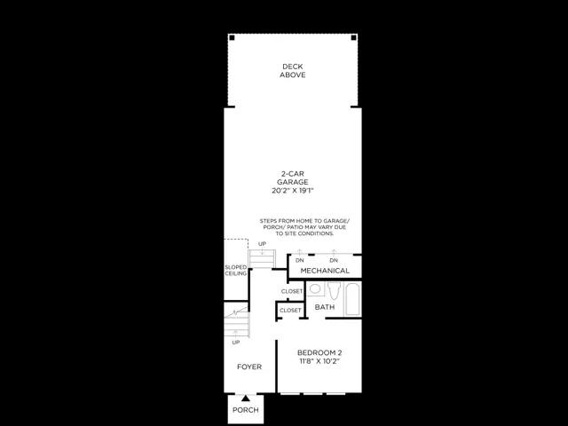
The Henry home design offers a spacious three-level floor plan with a modern layout perfect for luxury living. On the main floor, an open-concept kitchen with island flows seamlessly into the great room and casual dining area creating a cohesive living space. Upstairs, the luxurious primary suite boasts a tray ceiling adding an elegant touch to the room. A walk-in closet ensures plenty of storage space while the primary bathroom features dual vanities and a luxe shower with seat. Two secondary bedrooms, one on the third floor and one on the first floor, feature private baths. Also features is easily accessible laundry, a powder room on the main living level, and everyday garage entry.
Stay informed with Livabl updates on new community details and available inventory.