


































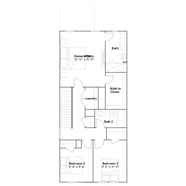
The first floor of this two-story townhome is host to an inviting open-concept floorplan that seamlessly connects a Great Room, dining area and kitchen. There are three bedrooms located upstairs, including the expansive owners suite featuring an en-suite bathroom and walk-in closet. Rounding out the home is a garage for convenient storage space.