






























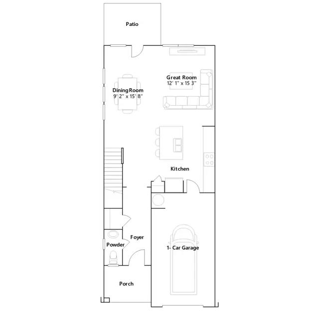
This new two-story townhome has an inviting contemporary design. A convenient, covered porch by the front door is great for a sitting area or package drop-off. Right of the foyer is a powder bath for guests to freshen up. The main-level Great Room flows seamlessly into the dining room and chef-caliber kitchen, while the back patio is perfect for outdoor activities. Surrounding windows bring lots of natural light to the open space. Luxury vinyl plank flooring extends throughout the first floor. The kitchen is complete with granite countertops, tile backsplash, and stainless-steel appliances. Upstairs are two secondary bedrooms and the owners suite, complete with a walk-in closet and full-sized bathroom. Secondary bathrooms are complete with tub-shower combo and ceramic tile flooring. The home is rounded off with a one-car garage.
Stay informed with Livabl updates on new community details and available inventory.