


















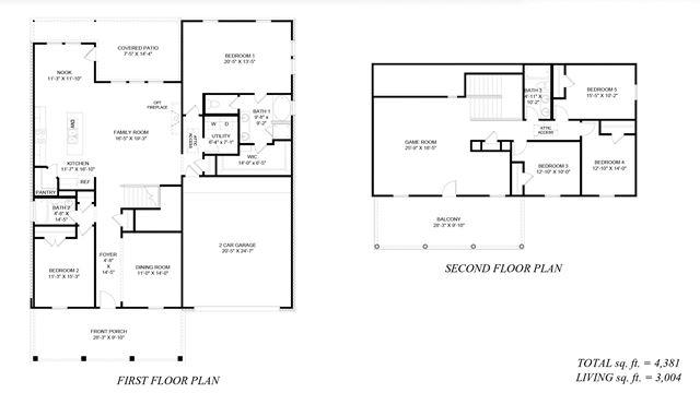
New Home in Lakeshore Villages! The Warwick is a beautiful and spacious two-story home! This new home features a large bedroom suite on the first floor with a large walk-in closet, double vanities, tub, separate shower, and water closet. The first floor also has a spacious family rooms, formal dining room, second bedroom, and full bath. The second floor has three more bedrooms, a game room, and one full bathroom. Modern finishes include 3 cm granite, stainless gas appliances and hard surface flooring. Smart home features are also included for added convenience and security. Book your appointment for a tour today!
Stay informed with Livabl updates on new community details and available inventory.