



































Get additional information including price lists and floor plans.
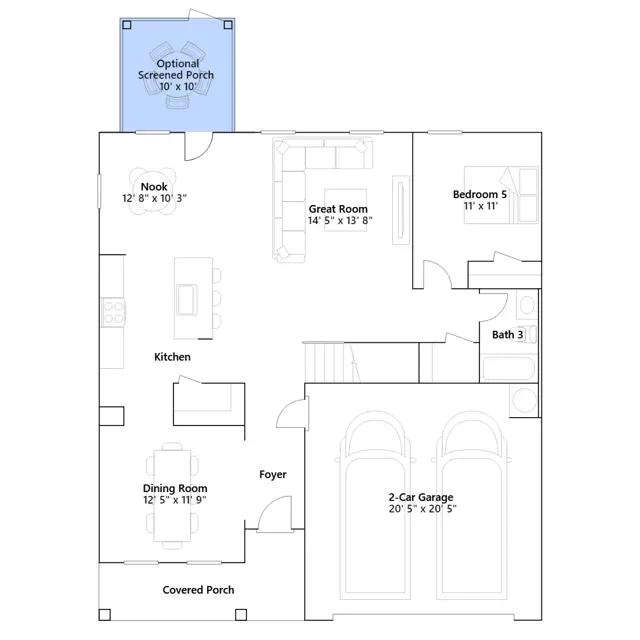
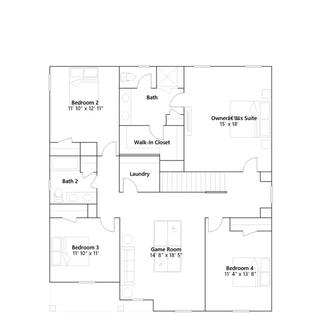
This two-story home is ready for modern lifestyles. On the first floor, an elegant dining room is located off the foyer, near a spacious and flexible open-concept layout shared between the kitchen, nook and Great Room. A bedroom is nestled into a private rear corner near a full bathroom. Four additional bedrooms surround the game room on the second floor, including the luxe owners suite.
Stay informed with Livabl updates on new community details and available inventory.