













































































Get additional information including price lists and floor plans.
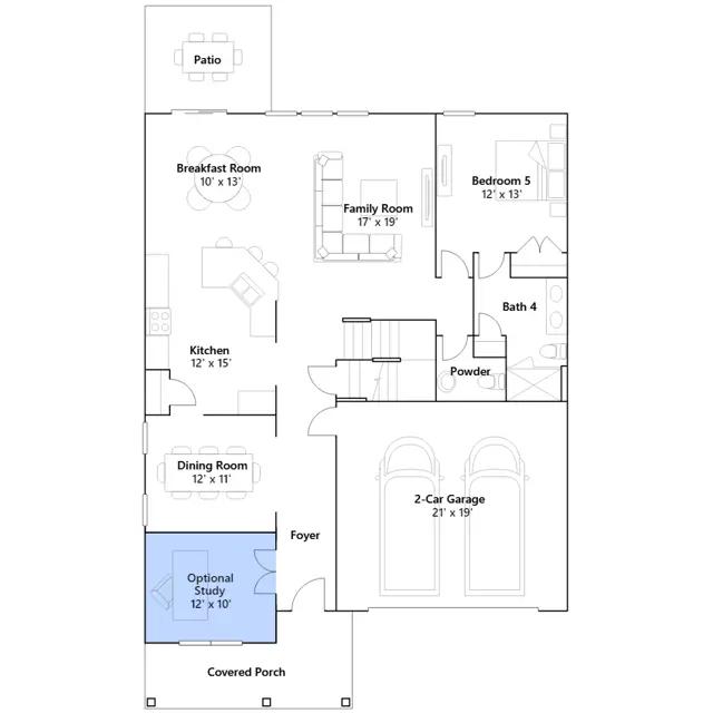
This new two-story home features an airy layout among a first-floor kitchen with a large center island, breakfast nook and family room thats fit for modern times. The spacious guest suite enjoys privacy on the main floor with a convenient full-sized bathroom. On the second floor is a large loft to provide additional shared living space surrounded by three restful bedrooms and an owner's suite. A two-car garage completes the home.
Stay informed with Livabl updates on new community details and available inventory.