
















Get additional information including price lists and floor plans.
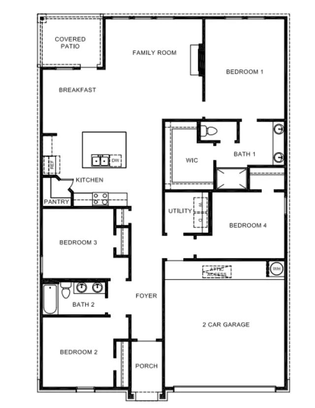
The Cali Floorplan is one of our one-story floorplans featured in Whispering Oak community in Siloam Springs, Arkansas. With 2 modern exteriors to choose from, Cali is sure to turn heads. To top it off, this floorplan coming with a 2-car garage. This spacious floor plan includes 4-bedroom, 2-bathroom, with an open concept living area, where your kitchen, living, and dining areas blend seamlessly into a space perfect for everyday living and entertaining. The kitchen features 36 cabinets, quartz countertops with tile backsplash, and stainless-steel appliances, which are sure to both turn heads and make meal prep easy. Youll never be too far from the action with the living and dining area right there. In every bedroom youll have carpeted floors and a closet in each room. Whether these rooms become bedrooms, office spaces, or other bonus rooms, there is sure to be...
Stay informed with Livabl updates on new community details and available inventory.