hero-image-0
Sedgewood at Salisbury Village
Sold
Sold
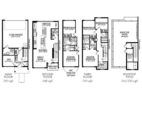
3
2
1
From 1,758
unit-banner-imageunit-banner-imageunit-banner-image
Skyline Plan details
Skyline Plan is now sold.
Check out available nearby plans below.