hero-image-0

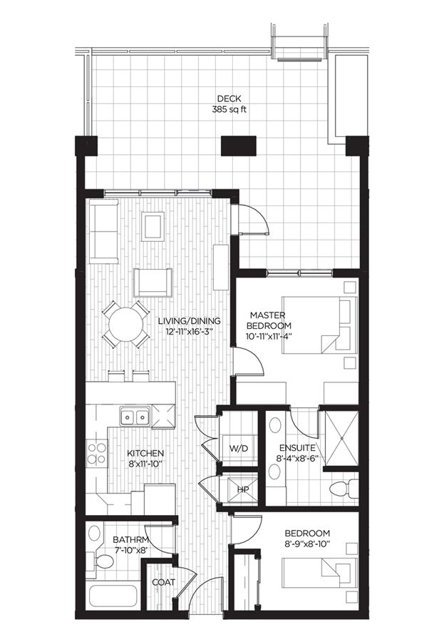
Unit 234

By

Salvi Group

   |   

Savona

Savona
For sale
For sale
Pricing coming soon
2
2
865
Unit 234 details

Contact sales center

Get additional information including price lists and floor plans.

Interested? Receive updates

Stay informed with Livabl updates on new community details and available inventory.