










































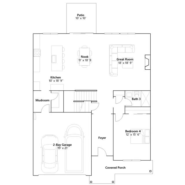
This new two-story home is ideal for modern lifestyles. A bedroom and full bathroom are located off the foyer, leading to an inviting open-concept layout with access to a patio for simple indoor-outdoor living. A versatile bonus room is located on the second floor, easily accessible from two bedrooms and a luxurious owners suite with a full bathroom and walk-in closet.
Stay informed with Livabl updates on new community details and available inventory.