











Get additional information including price lists and floor plans.
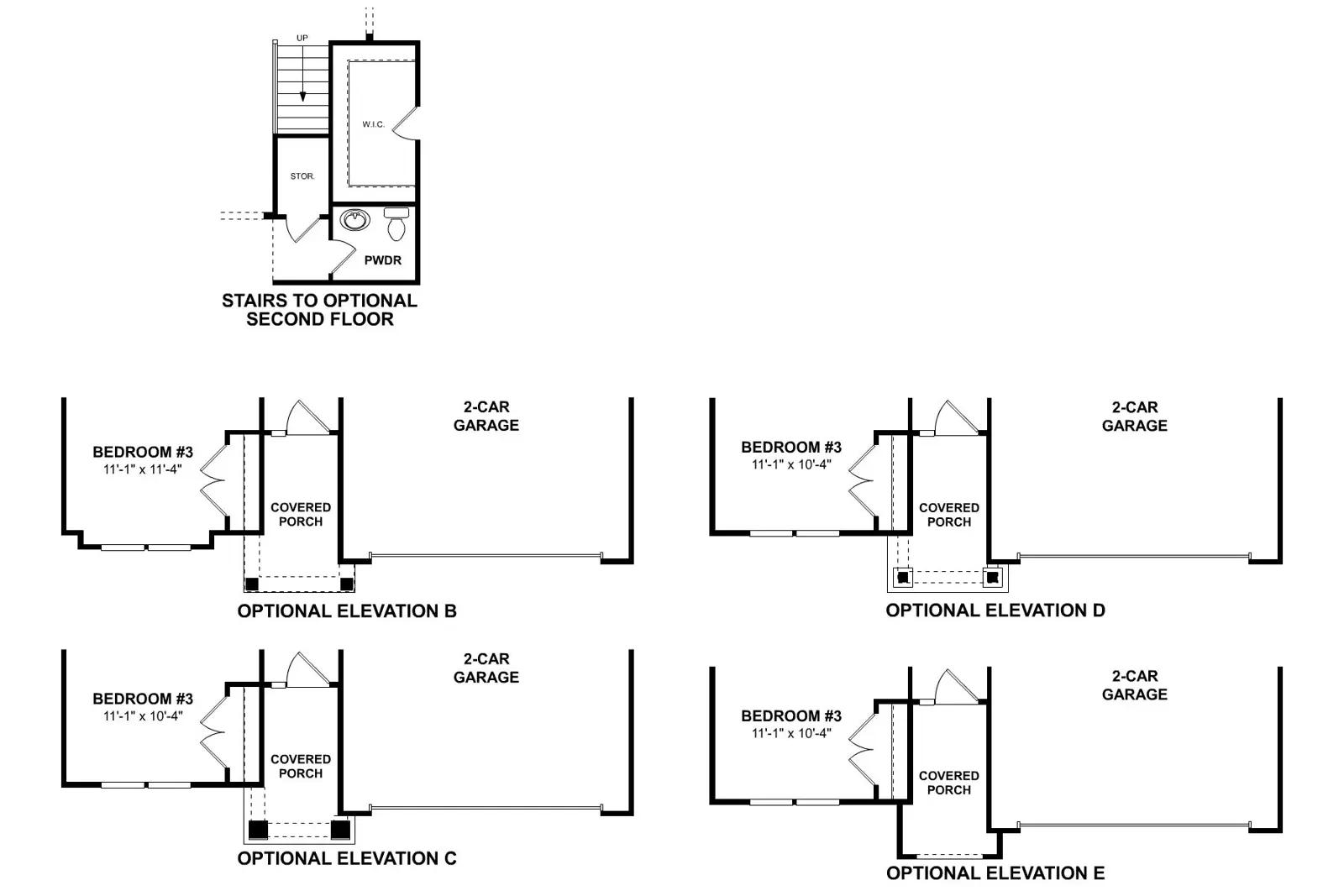
The Meadow is a 2-story home that your family will enjoy for years to come. This home features 1,947 square feet of well-designed space with you and your family in mind. With 4 bedrooms, 3.5 bathrooms, and a 3-car garage, there is plenty of space for everyone. Come and tour it today.
Stay informed with Livabl updates on new community details and available inventory.