







































































Get additional information including price lists and floor plans.
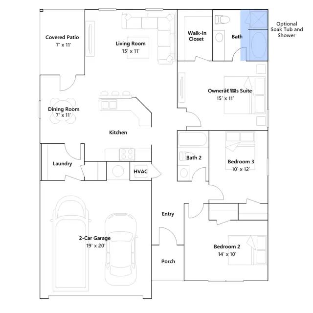
This new single-story home is perfect for various needs and lifestyles. Three secondary bedrooms boast a private location at the front of the home, near a spacious and flexible open-concept layout that blends the kitchen, living and dining areas to maximize interior space. The luxe owners suite provides a serene retreat in a private rear corner, complete with a full bathroom and walk-in closet.
Stay informed with Livabl updates on new community details and available inventory.