















Get additional information including price lists and floor plans.
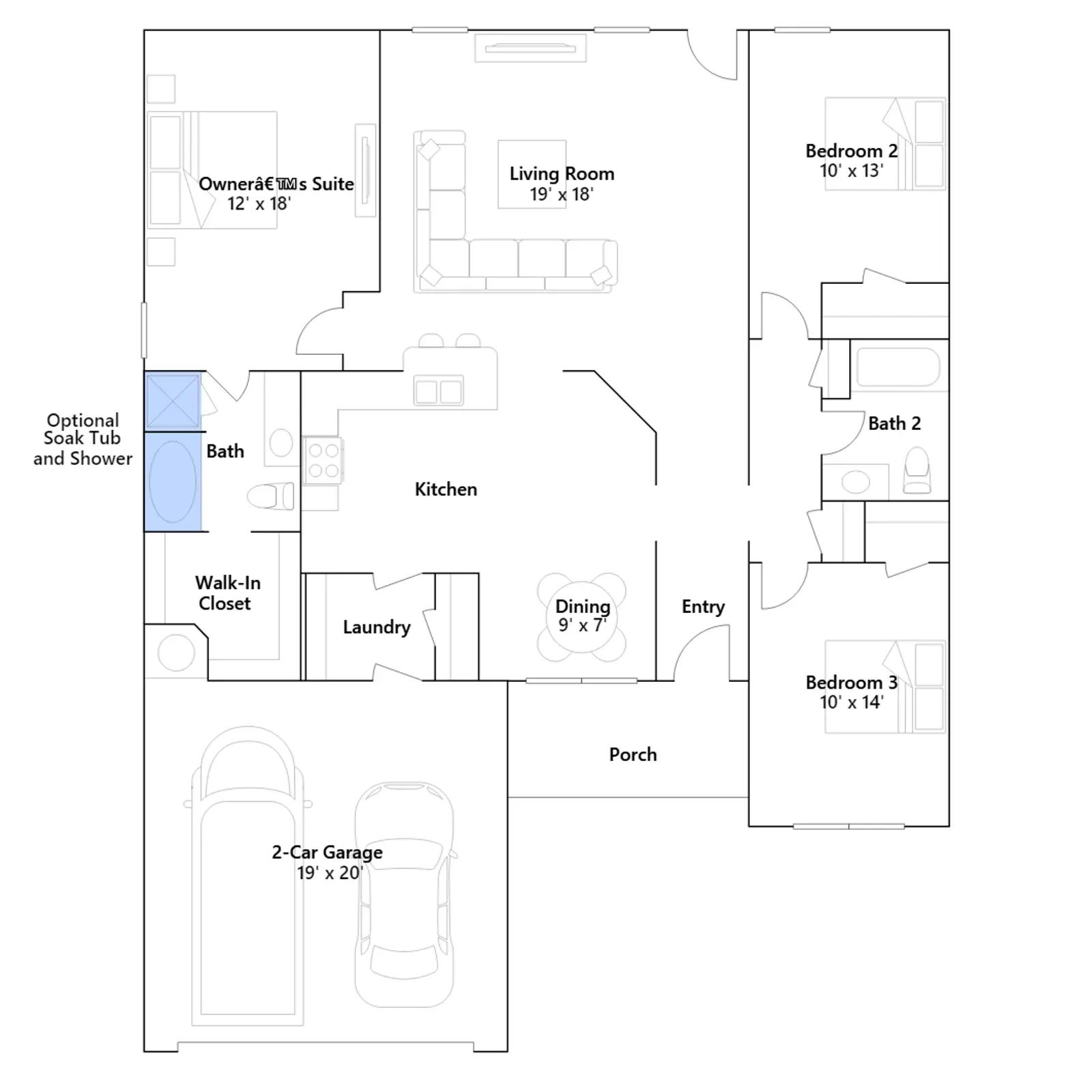
Upon entry into this modern single-level home is a spacious living room ideal for entertaining guests, followed by a well-equipped kitchen and an intimate breakfast area arranged in a desirable open floorplan. Tucked to the side of the living room is the tranquil owners suite with an adjoining bathroom and walk-in closet. The remaining two bedrooms are tucked away at the opposite side of the home with easy access to a hallway bathroom.
Stay informed with Livabl updates on new community details and available inventory.