
















Get additional information including price lists and floor plans.



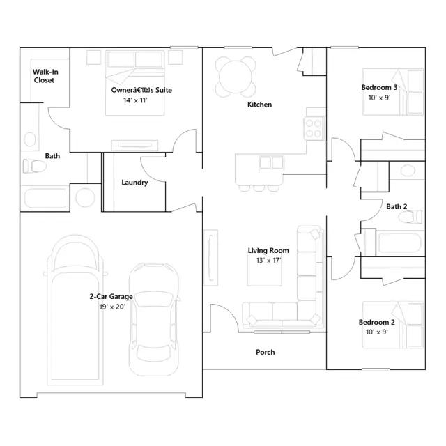
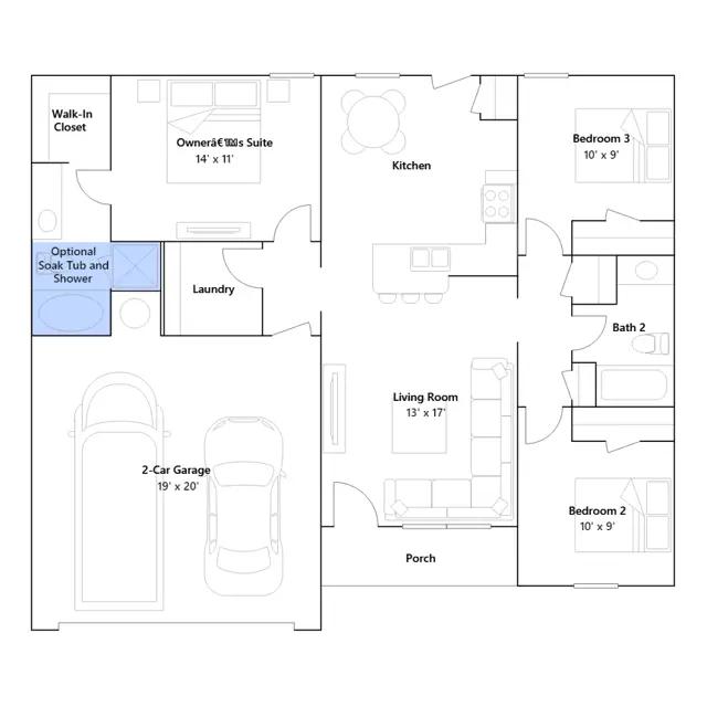
At the heart of this new single-level home is a welcoming living room ideal for gatherings and a peninsula-style kitchen to craft delicious meals. The owners suite is a serene retreat and situated at the opposite side of the home from the two secondary bedrooms, granting homeowners maximum privacy. Rounding out the space is a two-car garage at the front to provide versatile storage space.
Stay informed with Livabl updates on new community details and available inventory.