




















































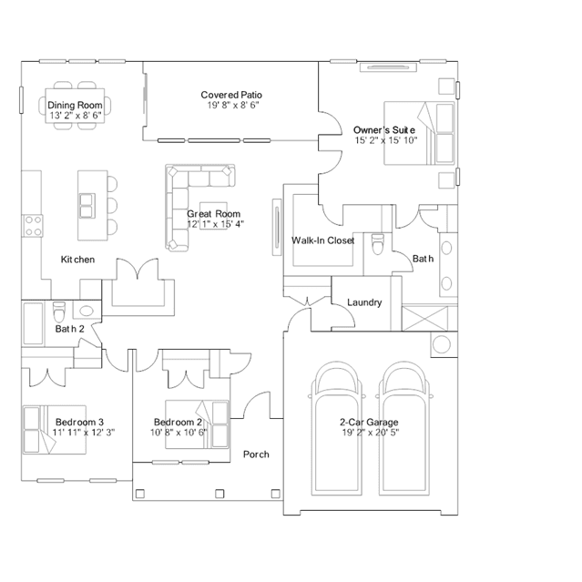
This single-story home comes with a great layout, as well as optional upgrades and additions at select homesites. It features an open plan shared by the kitchen, Great Room and dining room that leads to a covered patio for outdoor activities. Rounding out the home are three bedrooms including the luxe owner's suite with an attached bathroom. Options include a screened patio, three-car garage and second floor addition with a fourth bedroom.