












































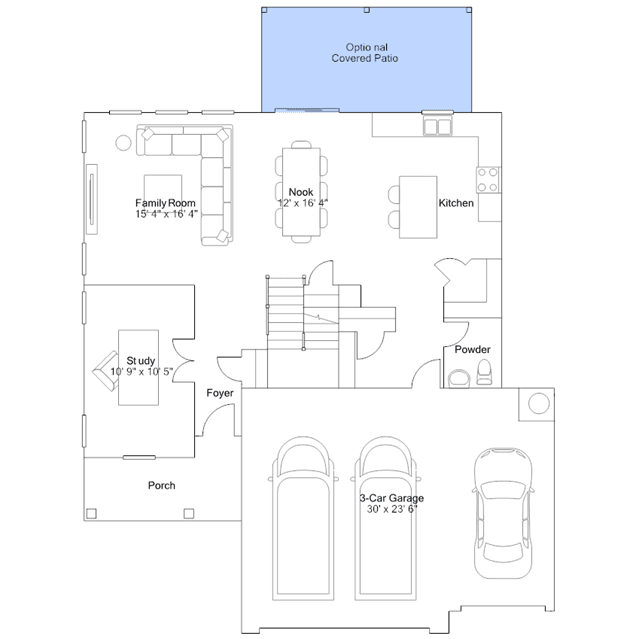
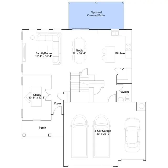
This new two-story home combines comfort and style. French doors open to a study off the foyer, perfect for those work-from-home days. Down the hall is a gracious open-plan living area with direct access to an attached patio. On the second level are three secondary bedrooms and a spacious owners suite with a private bathroom. An enviable three-car garage offers endless possibilities.